Front View
Photography by @Javier Agustin Rojas


Backyard Area
Render

Side View
Photography by @Javier Agustin Rojas

Implantation

Ground Floor

Axonometric View
Drawing

First Floor

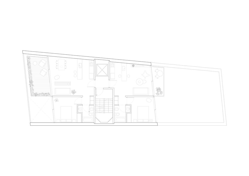
Second Floor

Third Floor

Section

View

Section

Backyard Area
Photography by @Javier Agustin Rojas
Memory
The project is located on a residential passageway in the Palermo neighborhood of Buenos Aires.
In response to the urban profile regulations established by the City for these types of passageways, the building façade was set back from the first floor upward, respecting the street’s characteristic configuration. This created an intermediate space defined by a metal enclosure, which in turn shaped the terraces of the units and introduced distinct spatial qualities.
​
The building contains seven functional units and makes the most of the lot’s limited depth and narrow width. The units are arranged two per floor, each with its own private outdoor expansion in the form of a balcony-terrace. On the top floor, these expansions become true terraces, spanning the full width of the site.
The façade design is composed of vertical tubes arranged in an irregular rhythm, creating a sculptural reading of the volume. This layer is unified by a metal mesh that references the industrial architecture present in the early development of the neighborhood.
Translucent in nature, the façade reveals the building’s interior when viewed head-on, while from an angle it becomes more discreet, maintaining the quiet character of the passageway.
Project in
Association with
Arch. Alberto Smud
Project Team
Arch. Agustina Falcon
Arch. Matias Rebusone.
Arch. Juliana Delojo
Arch. Florencia Lopez Iriquin
Arch. Nicolas Fernandez Sanz
Collaborators
Structure: Sebastian Berdichevsky

Entrance Views

Backyard Area